Проект дома Рябина
Калуга: ул. Салтыкова Щедрина,
д. 76, к. 4, офис 307
Подпишись

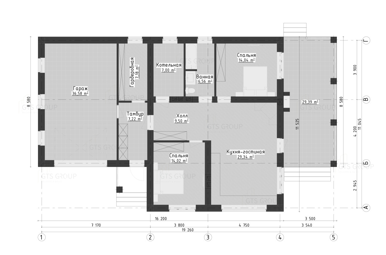
Проект дома Эхинацея

От 8 734 707 ₽

Итоговая цена складывается из геодезии, фундамена,
отделки фасада, крыши, типа окон и дверей

Общая:

169 м2

Жилая:

131 м2

Комнат:

2

Этажей:

1

Ваш менеджер: Николай

Оставьте ваш номер, отвечу на ваши вопросы, подберу подходящий проект дома и рассчитаю стоимость

Отправляя форму, вы соглашаетесь с политикой обработки персональных данных

Рассчитайте стоимость

и получите индивидуальный
дизайн-проект
дома в подарок

120~
Дней средний
срок строительства
7+
Лет гарантии
на построенный дом
5+
Рейтинг компании
на яндексе и авито
С 2016 года
Строим надежные дома
в Калуге и области
Фиксируем цену
Всего строительства
в нашем договоре
Сэкономим 20%
На строительстве за счет
наших скидок у партнеров
PDF каталог проектов

Самые популярные
проекты домов
за 2024 год

PDF каталог проектов

Это реальный PDF‑каталог,
основанный на 34 построенных
нами домах
за предыдущий год

Получить каталог

Это реальный PDF‑каталог, основанный на 34 построенных нами домах за предыдущий год